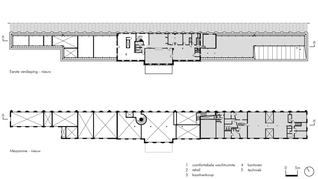
Het stationsgebouw van station Zwolle is gebouwd in 1868 door de Maatschappij tot Exploitatie Staatsspoorwegen (MESS). Het is een bijzonder goed bewaard gebleven voorbeeld van een ‘Station der 1e Klasse’, passend bij het belangrijke spoorknooppunt Zwolle. Het gebouw heeft dan ook de status van Rijksmonument. Een uitdagend herontwikkelingsproject op maat voor Ruland Architecten.





















