The towns of Millingen, Ubbergen and Groesbeek have merged in 2015. This required the combined organisation to be housed in the current town hall of Groesbeek. Ruland Architecten was asked to submit a preliminary design for the required reconstruction of public access areas and internal routing.
In every town, the town hall has a central position as a connecting element between council and its civil servants and citizens. It’s a building that combines the functions of public affairs and enabling meetings. The organisational merger of the towns of Millingen-Ubbergen-Groesbeek requires ‘their’ town hall to be much more than simply a renovated and adapted Groesbeek town hall. This ambitious new town deserves a ‘new house’ with a fitting personality, that is recognisable to all citizens.
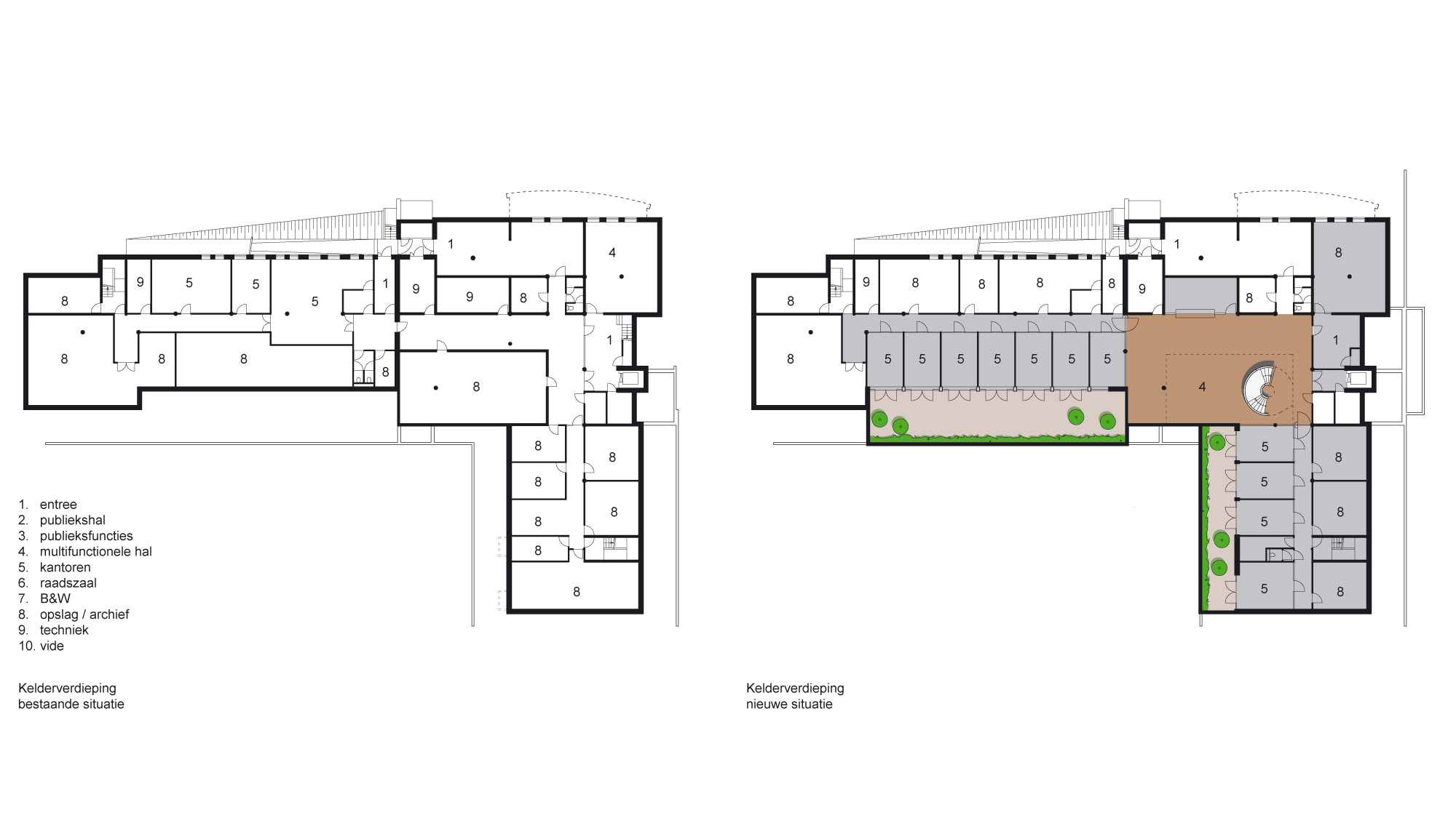
The internal routing in the current building however does not allow for the housing of a new organisation. The current position of the staircases makes it virtually impossible to use the main hall as a meeting place and disrupts an efficient routing in the building. Access to the basement is hidden and therefore functionally and visually closed off from the rest of the building. Additionally, the building appears to turn its back on the town centre’s main road: the Dorpsstraat. Finally, the council chamber, the ‘heart’ of the administration, has the outward appearance of a closed bastion.
Removing the current staircases and creating a new, distinctive staircase in the main hall is a key point in our vision. These new stairs enables an efficient routing through the building, and simultaneously gives the main hall a more welcoming appearance. The vertical connection makes the basement an integral, usable part of the building. Removing the current staircases and the inaccessible public balcony makes the council chamber a much more appealing room in every way.
An additional public entrance on the Dorpsstraat adds accessibility and improves contact and ‘accidental’ meetings between employees and citizens. This really brings the town hall into the centre of the new town. By enlarging the current window of the council chamber, the functioning of the council gains visibility and transparency. The current, introverted building, will – though a couple of well-chosen adaptations – be transformed into a new, modern, recognisable and efficient building with an open and accessible appearance. A beautiful new home for a beautiful new community.
| Location | Groesbeek |
| Floor area | 4800 sq m gross floor area |
| Year | 2014 |
| Status | Preliminary Design |
| Client | Gemeente Groesbeek, Groesbeek |
| Architect | Ruland Architects, Amsterdam |
| Images | Ruland Architects, Amsterdam |
Interesting links
Here are some interesting links for you! Enjoy your stay :)Newsletter
Archive
- November 2025
- March 2025
- December 2024
- November 2024
- October 2024
- September 2024
- August 2024
- May 2024
- March 2024
- December 2023
- November 2023
- September 2023
- July 2023
- June 2023
- March 2023
- January 2023
- December 2022
- November 2022
- September 2022
- July 2022
- February 2022
- December 2021
- November 2021
- October 2021
- September 2021
- July 2021
- April 2021
- March 2021
- February 2021
- January 2021
- December 2020
- November 2020
- October 2020
- September 2020
- August 2020
- July 2020
- June 2020
- December 2019
- November 2019
- October 2019
- September 2019
- June 2019
- May 2019
- April 2019
- March 2019
- January 2019
- December 2018
- November 2018
- October 2018
- September 2018
- August 2018
- July 2018
- June 2018
- May 2018
- April 2018
- March 2018
- February 2018
- January 2018
- December 2017
- November 2017
- August 2017
- June 2017
- May 2017
- April 2017
- February 2017
- January 2017
- December 2016
- October 2016
- September 2016
- August 2016
- June 2016
- May 2016
- January 2016
- December 2015
- November 2015
- October 2015
- September 2015
- August 2015
- June 2015
- May 2015
- April 2015
- March 2015
- January 2015
- December 2014
- November 2014
- September 2014
- August 2014
- June 2014
- May 2014
- April 2014
- March 2014
- February 2014
- January 2014











